Back to Search results

Chequers, Felsted

Felsted, CM6 3DL

Your investment

£41,000

Agreement Type

Long Term Agreement (5 Year Tenancy)
  • Transformational investment planned
  • Superb village location
  • Strong food potential

The Chequers is a prominent village pub with strong potential, ready for an experienced licensee to lead its transformation. We’re seeking someone with proven success in similar venues who can deliver a high-quality, community-focused offer. The vision is for an all-day pub that caters to all occasions – serving quality coffee, lighter bites, and a full food menu, supported by a drinks range that spans premium draught, wines and spirits, cask ales and sessional options. The licensee will be strongly supported by a truly transformational investment, and the images give a flavour of the development planned for the property. It will be a best in class pub for miles around, and the look and feel will sit perfectly in the local area.

The Chequers enjoys a prominent and highly visible position just off the main Braintree Road (B1417) in the heart of the picturesque village of Felsted, Essex. Set slightly back from the roadside, the pub forms a striking feature of the village streetscape, benefiting from its central location. Notably, Felsted Senior School one of the UK’s leading independent schools is located directly behind the pub, while Felsted Prep School lies just across the road. This prime positioning places The Chequers at the heart of a vibrant local community with a strong educational and residential presence.  Despite its rural charm, Felsted is well-connected, served directly by the A120, with links to Stansted Airport and the M11. Nearby access to the A12, A131 (to Chelmsford and Halstead), and B1256 provides excellent connectivity to nearby towns. Several rural bus routes pass through the village, enhancing accessibility from Braintree, Great Dunmow, Chelmsford, and Saffron Walden.

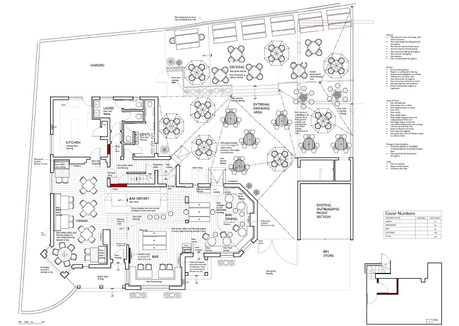
Pub Layout

The pub currently features three distinct trading areas centred around a single bar servery. Two of the trade areas are currently in use, with an additional room to the left that is currently underutilised. Planned redevelopment will transform the layout into a bright, open-plan horseshoe-shaped space by relocating the bar, opening up the left-hand room, and creating a direct connection from the kitchen to the trade floor. This will significantly enhance flow and atmosphere, allowing for 72 internal covers. To the rear, a tired outhouse will be removed to create a spacious and inviting external area, offering up to 124 covers—perfect for outdoor dining, events and maximising trade throughout the year.

The Chequers is a strong wet led pub with a large opportunity to develop a food offering. The pub currently offers periodic entertainment and cask ales and is open 7 days a week. There is one other pub in the village, The Swan, which is food-led, offering an Italian-inspired menu and operating throughout the day. With its standout location and increasing local population, The Chequers is well placed to become a key social and dining hub in this growing community.

Private Accommodation

The private accommodation consists of three double bedrooms, lounge, kitchen and bathroom.  This area is spacious and in good condition.

Annual Rent: £42,500

Security Deposit: £10,000 or the equivalent of three months’ rent, whichever is greater

Working Capital: £2,000

Stock: £8,000

Fixtures and Fittings: £40,000 with an initial upfront payment of £20,000 –  funding options may be available for the right licensee.

Training Fee: £460

Legal Fee: £570

Tie: All drinks categories are tied.  For fully funded licensees on long term agreements, we offer free-of-tie options for certain drinks categories in exchange for an annual fee.

For a breakdown on financial information, please refer to the ‘Additional Info’ tab.

Annual Rent – This is our lowest rent figure associated with a Full Tie.  If the tie is reduced the effective rent (via Tie Release Fees) will increase.  Rent is billed and paid for weekly in advance depending on the payment terms agreed). On occasion, our Business Development Manager will discuss a start up rent which is discretionary to an individual pub and can be discussed.

Security Deposit – This sum of money will be held on your account and will be returned to you on exiting of the pub based on your final account balance and the condition of the property.  Our standard deposit is 25% of the headline rent.  On occasion, we can negotiate a lower security deposit with the aim to build up to our full deposit on a long term agreement.

Working Capital – This is a recommend amount required which will be used in the day-to-day running of the business.

Stock – This will be valued by an independent valuer on the day you take over the pub. This includes unbranded glassware, unopened bottles, wines, spirits, any unopened / opened kegs and cask ale providing the container is unopened.

Fixtures & Fittings – This includes any item that is bolted to the floor or walls, and a fitting to be any item that is free standing or hung by a nail or hook. This will also include furniture.

Tie: All drinks categories are tied.  For fully funded licensees on long term agreements, we offer free-of-tie options for certain drinks categories in exchange for an annual fee.

Training£350.00 – Before signing a long term agreement, you will be required to attend our 7 Steps to Sales Success training programme.  Held online over two days, you will learn marketing and business strategies that will help you to grow sales in your pub – step-by-step.

Service Charge Cost – £63.33 per week – The Admiral Taverns Premium Maintenance Package will help take care of your compliance and statutory obligations with one simple fee, whilst giving you piece of mind about your boiler and cellar cooling repair and replacement.  This also includes full access to e-learning for you and your staff.

*Zero Business Rates – Based on the April 2023 rating list, the Nil Rates Payable is based on small business rates relief being applied for by the licensee and the licensee only occupying one property for commercial purposes.  Please note, this only applies to pubs marked with an Asterix *


Keep up to date with vacancies

"*" indicates required fields

This field is for validation purposes and should be left unchanged.